Projeto Pronto - Casa 3 quartos - 1 suite - Tijolo Ecológico.

casa de tijolo ecologico

CT88

Casa 3 quartos - Tijolo Ecológico - CT88

DESCRIÇÃO:

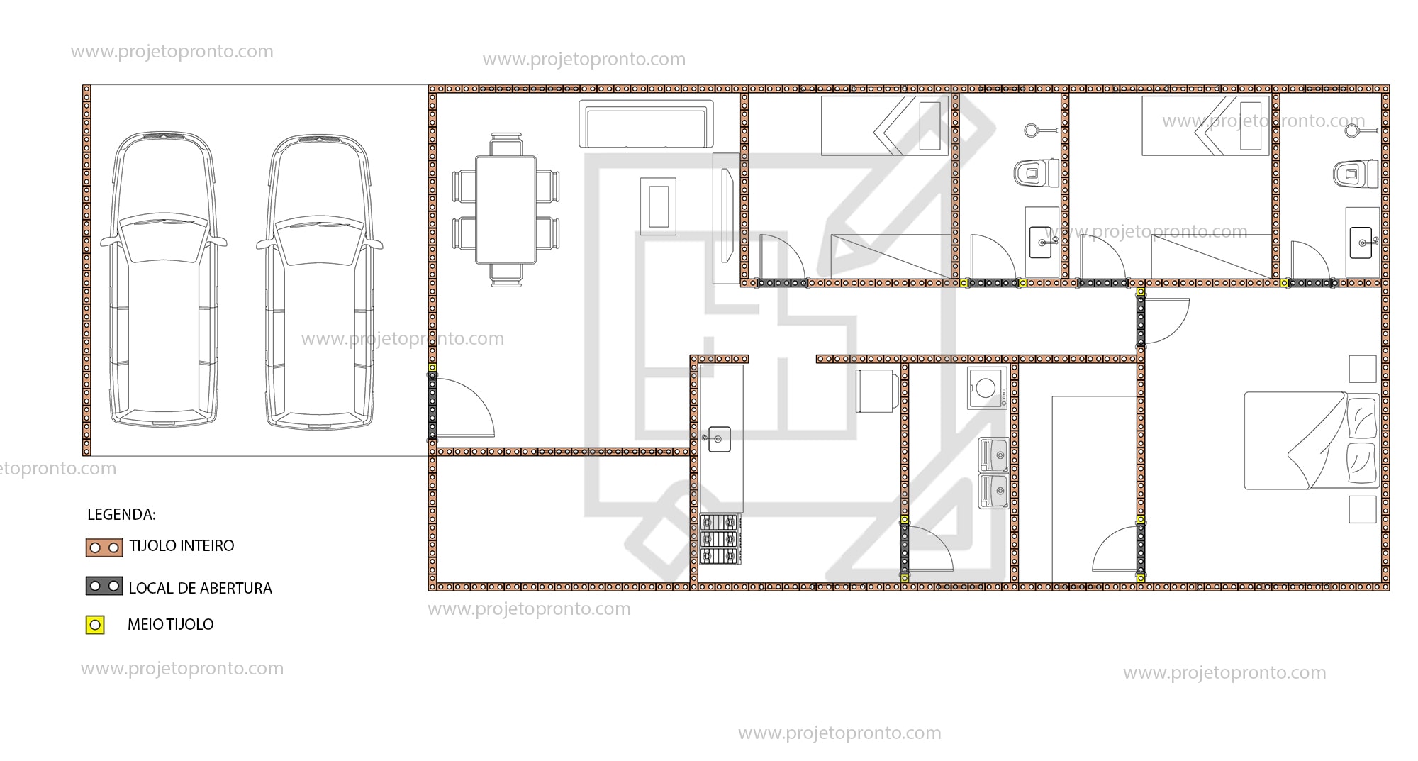
3 quartos sendo 1 suíte.

Garagem, sala de estar/jantar, banheiro social, 3 quartos sendo 1 suite com closet, cozinha, área de serviço.
Área construída = 127,30m²

Confira essa excelente opção de casa com 3 quartos, usando o tijolo ecológico. O tijolo ecológico além do aspecto estético bastante apropriado para casas de campo, sitio, fazenda, praia, etc, tem muitos benefícios já bastante conhecidos, como o conforto térmico, isolamento acústico e agilidade na execução e sobretudo na economia de materiais. Projeto perfeito para terrenos mais amplos ou situados em áreas mais abertas, de preferência integradas à natureza, valorizando ainda mais a volumetria da casa.

PROJETO ARQUITETÔNICO:
por

R$ 650,00

em 10x de R$ 65,00 sem juros

casa de tijolo ecologico

ÁREA CONSTRUIDA (m²)
127,3m²

casa de tijolo ecologico

QUARTOS
3

casa de tijolo ecologico

SUÍTES
1

casa de tijolo ecologico

BANHEIROS
2

projeto pronto casa de tijolo ecologico

VAGAS DE GARAGEM
2

projeto pronto casa de tijolo ecologico

DIMENSÕES EXTERNAS
7,5 X 19,375

PLANTA BAIXA

planta de casa tijolo ecologico

Dados Técnicos

3 quartos sendo 1 suíte.

Garagem, sala de estar/jantar, banheiro social, 3 quartos sendo 1 suite com closet, cozinha, área de serviço.
Área construída = 127,30m²

MEDIDAS DO TIJOLO UTILIZADO: (12,5x7x25)(LxHxC)

9,5 X 19,375

ENTRE EM CONTATO PARA MAIS INFORMAÇÕES

PROJETO ARQUITETONICO:


1 - PLANTA BAIXA
2 - PLANTA HUMANIZADA
3 - PLANTA DE LAYOUT DE PONTOS ELÉTRICOS
4 - PLANTA DE LOCAÇÃO
5 - PLANTA DE COBERTURA
6 - FACHADAS
7 - CORTES
8 - QUADRO DE ESPECIFICAÇÕES
9 - QUADRO DE ÁREAS
10 - FACHADA 3D (Imagens externas)
11 - PLANTA DE 1a FIADA (Disposição dos tijolos na primeira fiada)


VER EXEMPLOS DOS ITENS ACIMA. 


VALOR

R$ 650,00

em 10x de R$ 65,00 sem juros
  • Pagseguro
  • MercadoPago

  • Compra Segura

Dúvida sobre este projeto?

Perguntas frequentes

ASSINATURA DO PROJETO RRT
O Registro de Responsabilidade Técnica (RRT) é o documento que comprova que o projeto de Arquitetura possui um responsável devidamente habilitado e com situação regular perante o Conselho para realizar tal atividade. Este documento é obrigatório para a aprovação do projeto em qualquer município. Entre em contato para se informar do custo de tal documento

O prazo de entrega de um Projeto Pronto vai da entrega imediata a até 10 dias úteis a contar da confirmação do pagamento. Até o cumprimento deste prazo, serão entregues via email, os arquivos correspondentes ao projeto em formato pdf e imagens em formato jpg. Caso solicitado, enviamos o arquivo .dwg com o projeto, só não nos responsabilizamos por alterações no projeto desenvolvido após sua entrega.

Os pagamentos dos projetos são realizados através do PagSeguro UOL ou do MercadoPago. Quando você envia um pagamento através destas plataformas, a loja virtual não tem acesso a seus dados financeiros, tais como: os seus dados bancários ou o número do seu cartão de crédito. Além disso, o comprador tem o “Pagamento Seguro”, isto significa que caso ocorra qualquer problema na entrega do projeto, você poderá pedir a devolução do seu dinheiro diretamente para o as plataformas de pagamento.

Se você gostou deste projeto, mas faltou algum detalhe para torná-lo ideal, podemos efetuar as modificações desejadas como nas opções a seguir. Cobramos exclusivamente R$ 6,00/m² pelo projeto modificado com o pagamento a ser efetuado somente após a aprovação das modificações sugeridas. Clique aqui para saber mais sobre este processo.

Não encontrou o projeto como desejava?

ENTRE EM CONTATO CONOSCO, DEIXE UMA MENSAGEM COM AS CARACTERÍSTICAS DESEJADAS PARA O SEU PROJETO, E RECEBA UM LAYOUT SEM PAGAR NADA POR ISSO.

PROJETOS SIMILARES

Talvez você se interesse por um destes projetos
-
fachada casa de campo
PROJETO CT87

Casa - 2 quartos sendo 1 suite
R$ 540,00
SAIBA MAIS...

PROJETO PRONTO
PROJETO CT85

Casa de campo - 2 quartos
R$ 620,00
SAIBA MAIS...

PROJETO PRONTO CASA EM 3 QUARTOS
PROJETO CT89

Casa 3 quartos sendo 1 suite
R$ 699,00

SAIBA MAIS....

PROJETO PRONTO

Responsável Técnico:
André Almeida
Engenheiro Civil
CREA:5071048059-SP

HOME
ENCOMENDE SEU PROJETO
PROJETO MODIFICADO
CONTATO
SOBRE

Atendimento de segunda à sexta das 9h às 18h
Whatsapp: (11) 9 9842 - 3760
atendimento@projeto.pronto.com

Redes Sociais